Welcome to Desert Illusion - The Boat
Home
Corporation
The Boat
Members
News
Schedule
Gallery
Resources
Port-Side View
Interior from the Bow View
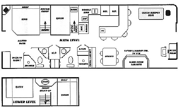
Floor Plan